咨询电话:400-128-7080
提示:丛一楼装饰向您承诺,您的个人隐私我们会严格保密!
来源:丛一楼装饰 更新时间: 2021-12-15
现代简约
案例风格
案例户型
230㎡
案例面积
力高君誉城
案例楼盘
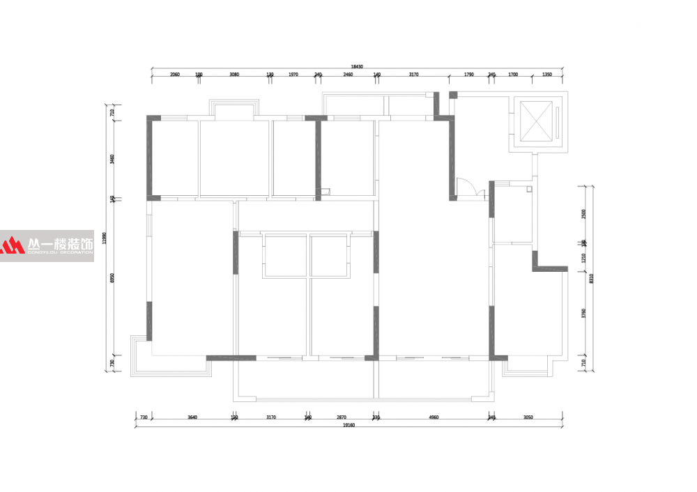
户型方正,采光比较好,但是入户大门正对客厅阳台,没有玄关区,空间显零碎,公卫面积较小,主卧储物面积不能满足四季衣物量,三口之家和长辈同住,五居室设计,给小主们安排上~
装修风格:现代
设计单位:丛一楼装饰
.........更多细节点不做过多赘述,高清大图及全景效果可以直接咨询在线客服
客厅


玄关

主卧

户型图
鉴于版面篇幅限制,更多设计亮点及全房方案大图全景可以直接咨询 在线客服 预约本案设计师,也可点击“我家装成这样要多少钱”10秒获取精准报价。

