咨询热线: 400-128-7080 售后专线: 400-823-0116
快速报价

免费装修报价

咨询电话:400-128-7080

提示:丛一楼装饰向您承诺,您的个人隐私我们会严格保密!

主页 精品案例 九颂山河220平复式仙侠风格设计作品

九颂山河220平复式仙侠风格设计作品

来源:丛一楼装饰  更新时间: 2020-04-01

一键转发: 
  • 新中式

    案例风格

  • 复式/别墅

    案例户型

  • 220㎡

    案例面积

  • 九颂山河

    案例楼盘

本案户型属于宽松舒适型复式,客厅与公共空间较大,空间结构在布局方面没有太大的变化,也不宜做过大的调整,属于舒适享受型。
 
在效果方面,武侠风占了主要的元素,摒弃了传统意义上的风格,采用了大量的武侠元素,让你感受到江湖的气息,彰显了设计师的个性和品味。


客厅

客厅
餐厅
餐厅
次卧
次卧
主卧
主卧
小孩房
小孩房
书房
书房
瑜伽房
瑜伽房
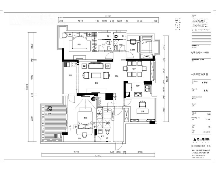
一楼平面布置图
一楼平面布置图
二楼平面布置图
二楼平面布置图
三楼平面布置图
三楼平面布置图

本案例设计师

廖丽忠

廖丽忠 从业时间:6年

我家装成这样要多少钱

相关案例

RELATED TO THE CASE

免费报价

已有 19056 位业主获取了装修报价

我家也要设计成这样

*您的称呼:
*电话号码:
*请您放心输入,您的一切信息将被严格保密
/*
*/

装修需要多少钱?

免费预约上门量房、报价

免费装修咨询

400-128-7080