业主需求:现在的商品房户型都不大,在储藏空间有限的情况下,合理利用空间,增加储藏空间,具有现代感的中式风格。
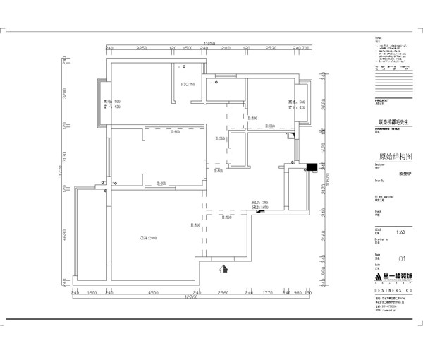
原户型不足:原始户型有三个阳台,但是厨房、餐厅、主卧空间都偏小,满足不了业主使用空间和储藏空间的需求。
设计改造亮点:原始户型有三个阳台,业主要求只需要保留一个南阳台即可,把北阳台扩进餐厅,改善原始户型里餐厅太小的缺点;厨房与储物间之间的改动使厨房活动空间更大,反面做个造型酒水柜,增加储藏空间的同时使过道更加生动美观;主卧空间太小而阳台扩进来以后次卧空间太大,双面衣柜巧妙的解决了这个问题;无法打掉的飘窗上面可以做隐形抽屉,使整个空间更加简介、实用。
风格亮点:整套中式设计时,融入了许多现代元素,而不是一味的照搬老式中式设计案例,取其传统精华,追求神韵,让改良后的中式风格体现出优雅舒适的生活态度。例如让传统的博古架、字画、瓷器、花格与现代的大理石、砖、砂岩、镜面、软包结合起来,再配以多层次的吊顶与线条变化,让沉闷的中式氛围鲜活起来,得到了业主的首肯与赞赏,尝试用一种全新的语言来诠释中式,提炼中国传统文化,唤醒人们深藏的记忆和文化认同感。
