咨询电话:400-128-7080
提示:丛一楼装饰向您承诺,您的个人隐私我们会严格保密!
来源:丛一楼装饰 更新时间: 2020-07-16
欧式
案例风格
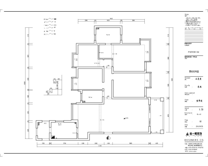
四居室
案例户型
174㎡
案例面积
国贸天琴湾
案例楼盘
设计说明:本案定位简欧风格,整个房型结构和通风采光都不错,从造型上也是运用比较简洁的手法,地面拼花,背景墙的大理石凹凸造型,酒柜的造型跟餐厅的吊顶相吻合,木制品以定制为主!多以象牙白为主色调,以浅色为主深色为辅。重点打造一个温馨浪漫的居家,而且要显得大气。在设计表现上运用欧式风的典雅,而用局部点缀的墙软包表露出主人的时尚、温馨的空间。







