色彩是一种直接感化灵魂的力量,带有浅白灰色调是空间的主题色,金色线条点缀,既有无边际的浩瀚又有卓尔不群的高贵,时不时以浅灰白、金色线条入视线,欧式石膏角线,极具财富与光辉的时尚元素运用于其中。和谐的组合、色彩的搭配、产品的多样性反映了内在的品位与修养。由此延伸到家居设计上亦是,深入探寻内涵是最重要的,抓住核心来进行创造,不仅仅着眼于视觉建设,更诉诸对“时尚家居”的深度理解。
走进这套公寓, 简洁而明净的客、餐厅,当阳光从一侧的落地窗照射进来,室内白色的天花及地板愈发显得时尚和谐。无论身处哪个空间,都能清晰地感受每个细节与整体空间之间和谐而统一的连贯性,无论是线条和廓形上的利落与严苛,还是从风格到色调,都一脉相承。让整个空间既摩登又包容,既个性又不乏深度。你不用走向时尚,我们让时尚走向你。

客厅

儿童房

主卧

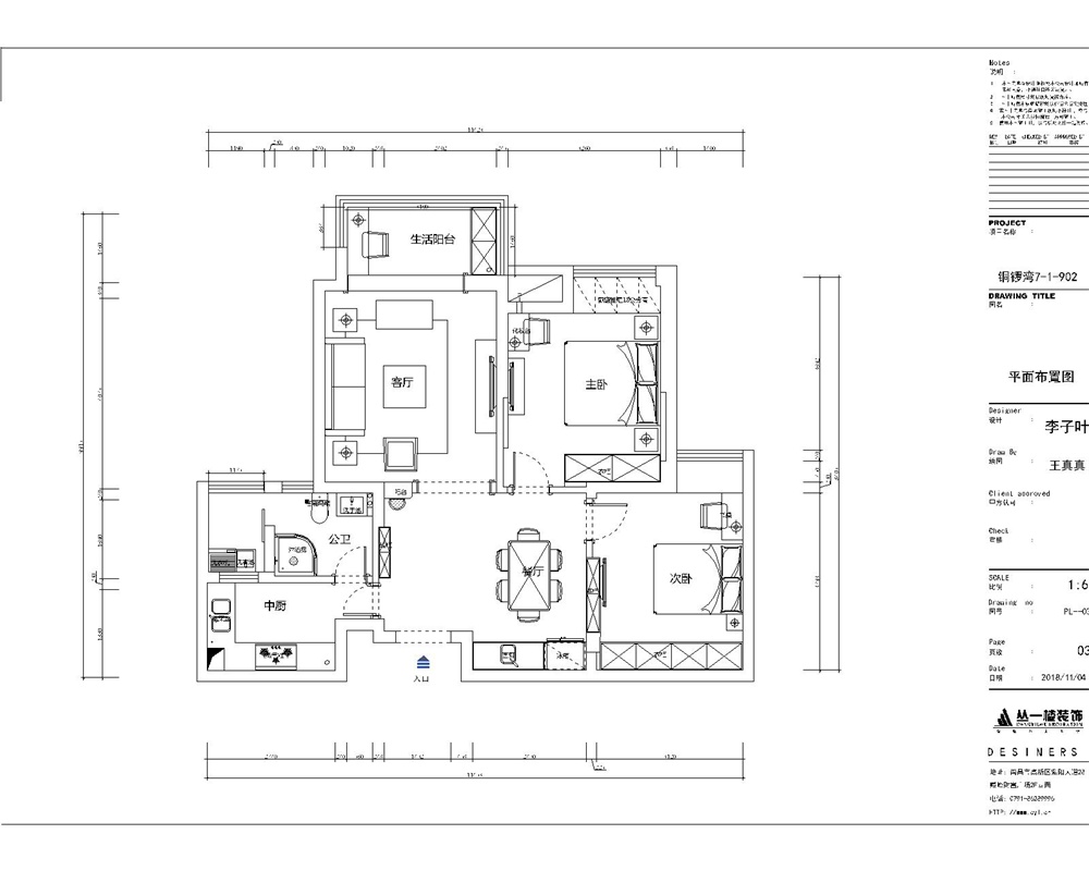
平面布置图