咨询热线: 400-128-7080 售后专线: 400-823-0116
快速报价

免费装修报价

咨询电话:400-128-7080

提示:丛一楼装饰向您承诺,您的个人隐私我们会严格保密!

主页 精品案例 莱蒙都会230平米复式简约时尚风格设计案例

莱蒙都会230平米复式简约时尚风格设计案例

来源:丛一楼装饰  更新时间: 2020-10-06

一键转发: 
  • 港式轻奢

    案例风格

  • 复式/别墅

    案例户型

  • 230㎡

    案例面积

  • 莱蒙都会

    案例楼盘

设计说明:本案为上下两层复式楼,选用的是现代简约风格,突出年轻人对时尚感、对空间感的追求,简单粗狂的线条、不同颜色地砖间断拼接、灰镜与饰面板点缀装饰…所有细节上的处理,勾勒出的是一个充满时尚元素又不乏温馨感的空间。

客厅
客厅
餐厅
餐厅
卧室
卧室
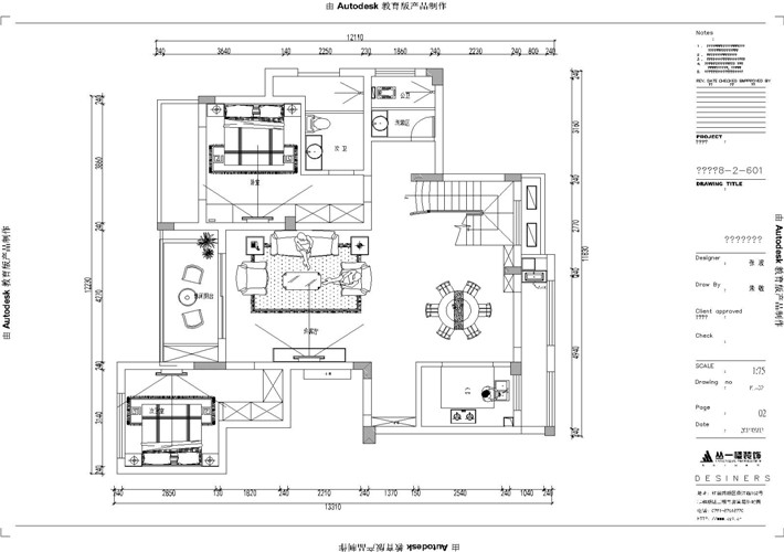
二楼平面布置图
二楼平面布置图
一楼平面布置图
一楼平面布置图

本案例设计师

张宗宝

张宗宝 从业时间:1年

我家装成这样要多少钱

相关案例

RELATED TO THE CASE

免费报价

已有 19056 位业主获取了装修报价

我家也要设计成这样

*您的称呼:
*电话号码:
*请您放心输入,您的一切信息将被严格保密
/*
*/

装修需要多少钱?

免费预约上门量房、报价

免费装修咨询

400-128-7080