咨询热线: 400-128-7080 售后专线: 400-823-0116
快速报价

免费装修报价

咨询电话:400-128-7080

提示:丛一楼装饰向您承诺,您的个人隐私我们会严格保密!

主页 精品案例 正荣大湖之都139平四房现代简约风格

正荣大湖之都139平四房现代简约风格

来源:丛一楼装饰  更新时间: 2020-04-01

一键转发: 
  • 现代简约

    案例风格

  • 四居室

    案例户型

  • 139㎡

    案例面积

  • 正荣大湖之都

    案例楼盘

本案希望在求索休闲的同时达到文化的深度,其以感性的手法诠释了休闲概念,地道的表现了质朴、自然、精致的休闲文化。简而没有多余的造型,却在关键部位渲出精彩,简洁而整体,大气而流畅。

客厅
客厅
餐厅
餐厅
卧室
卧室
原始结构图
原始结构图
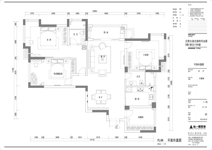
平面布置图
平面布置图

本案例设计师

肖皓洁

肖皓洁 从业时间:5年

我家装成这样要多少钱

相关案例

RELATED TO THE CASE

免费报价

已有 19056 位业主获取了装修报价

我家也要设计成这样

*您的称呼:
*电话号码:
*请您放心输入,您的一切信息将被严格保密
/*
*/

装修需要多少钱?

免费预约上门量房、报价

免费装修咨询

400-128-7080