咨询电话:400-128-7080
提示:丛一楼装饰向您承诺,您的个人隐私我们会严格保密!
来源:丛一楼装饰 更新时间: 2021-12-18
现代简约
案例风格
二居室
案例户型
110㎡
案例面积
市内楼盘
案例楼盘
设计师:李彩虹
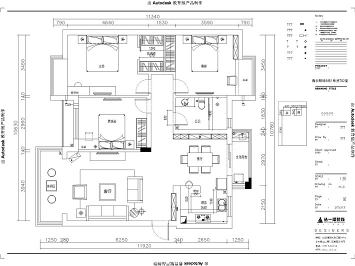
楼 盘:青云明珠
户 型:三房两厅
面 积:126平方米
风 格:欧式
造 价:12万
设计说明:
本案例是一套三室两厅结构,南北通透、户型方正,平面上不需要做大的改动,把原建筑的主卧做多了一个衣帽间以增大储物空间;业主是位成功人士,此套房子也只会偶尔去居住,整体风格要求为欧式,全房经典欧式墙布,电视背景大面积用的是高档石材,加上木饰面及壁灯的烘托,既高端大气上档次,米黄色的整体色调又不失温馨;餐区装饰酒柜的搭配,地面与客厅整体大面积精致欧式铺贴地砖既美观又大气;主卧更是以温馨和舒适为主,多光源的天花造型与床头皮质软包,享受生活就该如此;次卧男孩房则是选择了一款青少年比较钟爱的蓝冷色调做的居住空间,配上色彩相对鲜艳一点的后期软装搭配,在这个空间是不是非常放松呢......一起期待完成之后的惊喜吧!







