咨询电话:400-128-7080
提示:丛一楼装饰向您承诺,您的个人隐私我们会严格保密!
来源:丛一楼装饰 更新时间: 2021-12-06
现代简约
案例风格
二居室
案例户型
110㎡
案例面积
市内楼盘
案例楼盘
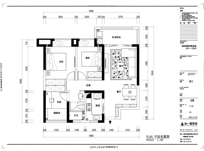
设计师: 杨羽超
楼 盘:绿地博览城
面 积:95平
户 型:三室两厅
风 格:现代风格
造 价:7万不含主材
设计说明:
此方案风格为现代简约风格,顾名思义,就是让所以的细节看上去都是非常简洁的。空间看上去非常简洁,大气,功能强,强调室内空间形态和物检的单一性,抽象性。无疑,现代简约风格的装修风格迎合了年轻人的喜爱,都是的忙碌生活,早已经让我们烦腻了都是的灯红酒绿和快节奏的生活状态。我们更喜欢的一个安静,祥和,看上去明朗宽敞舒适的家,来消除工作的疲惫,忘却都是的喧闹。





