咨询热线: 400-128-7080 售后专线: 400-823-0116
快速报价

免费装修报价

咨询电话:400-128-7080

提示:丛一楼装饰向您承诺,您的个人隐私我们会严格保密!

主页 精品案例 绿地悦城210平四房欧式风格设计案例

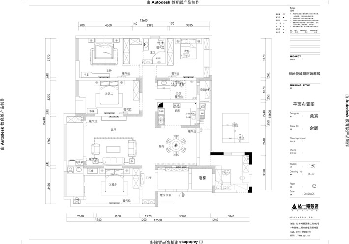
绿地悦城210平四房欧式风格设计案例

来源:丛一楼装饰  更新时间: 2021-12-02

一键转发: 
  • 现代简约

    案例风格

  • 二居室

    案例户型

  • 110㎡

    案例面积

  • 市内楼盘

    案例楼盘

设计师:聂宸

楼  盘:绿地悦城

面  积:210平方

户  型:四房二厅一卫

风  格:欧式

造  价:15万(不含主材)

设计说明:

   本案的设计通过跟业主沟通后,从功能区域进行了合理划分,与业主意见达成一致。效果上做到了简洁、时尚、大方,风格定位为现代欧式风格!

客厅
客厅
餐厅
餐厅
门厅
门厅
主卧
主卧
次卧
次卧
次卧2
次卧2
小孩房
小孩房
平面布置图
平面布置图
原始结构图
原始结构图

本案例设计师

李郁芬

李郁芬 从业时间:15年

我家装成这样要多少钱

相关案例

RELATED TO THE CASE

免费报价

已有 19056 位业主获取了装修报价

我家也要设计成这样

*您的称呼:
*电话号码:
*请您放心输入,您的一切信息将被严格保密
/*
*/

装修需要多少钱?

免费预约上门量房、报价

免费装修咨询

400-128-7080