咨询电话:400-128-7080
提示:丛一楼装饰向您承诺,您的个人隐私我们会严格保密!
来源:丛一楼装饰 更新时间: 2021-12-02
现代简约
案例风格
二居室
案例户型
110㎡
案例面积
市内楼盘
案例楼盘
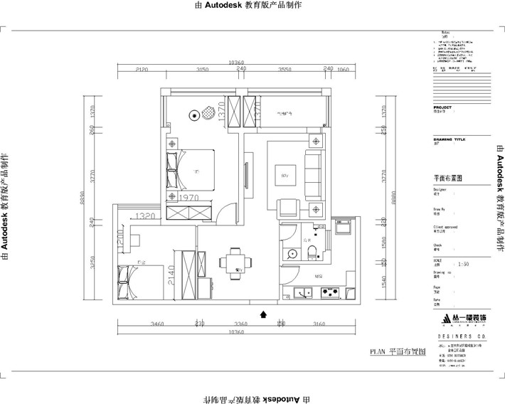
设计师:梁 超
楼 盘:香溢澜湾
户 型:两房两厅
面 积:90平方
风 格:简中
造 价:8万(不含主材)
设计说明:
中式简约具有很浓的中国文化特色,注重流畅的木质线条设计,以木质线条和木色给人原木韵味,外加现代、实用、精美的艺术设计风格,经过深思熟虑后从务实出发简约的背后也称托出中式的韵味和深度。注重生活的品味、注重健康时尚,把生活习惯和风格元素结合,设计出既简单又有中式韵味的风格感觉。最后得到业主的高度认可。





