咨询电话:400-128-7080
提示:丛一楼装饰向您承诺,您的个人隐私我们会严格保密!
来源:丛一楼装饰 更新时间: 2021-11-29
现代简约
案例风格
二居室
案例户型
110㎡
案例面积
市内楼盘
案例楼盘
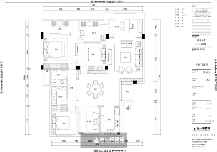
设计师:陈峰
楼 盘:奥克斯盛世华庭
面 积:120平方
户 型:联排别墅
风 格:中式
造 价:21万不含主材
主要用材:中央空调、中式花格、实木线条、大理石、硅藻泥、木地板等
设计说明:
本案的设计通过跟业主沟通后,从功能区域进行了合理划分,与业主意见达成一致,风格定位为中式风格!






