咨询热线: 400-128-7080 售后专线: 400-823-0116
快速报价

免费装修报价

咨询电话:400-128-7080

提示:丛一楼装饰向您承诺,您的个人隐私我们会严格保密!

主页 精品案例 莱蒙都会110平三房现代简约风格设计案例

莱蒙都会110平三房现代简约风格设计案例

来源:丛一楼装饰  更新时间: 2021-11-26

一键转发: 
  • 现代简约

    案例风格

  • 二居室

    案例户型

  • 110㎡

    案例面积

  • 市内楼盘

    案例楼盘

设计师:万奕鹏

楼  盘:莱蒙都会

户  型:三室两厅

面  积:110平方米

风  格:现代简约

造  价:8万不含主材

设计说明:

   本方案力求简约,客厅选择轻松明快的式样,装饰挂画点缀,取消了传统客厅的模式。主卧空间,简约大气又不失简美之灵性,通透实用。

客厅
客厅
主卧
主卧
小孩房
小孩房
书房
书房
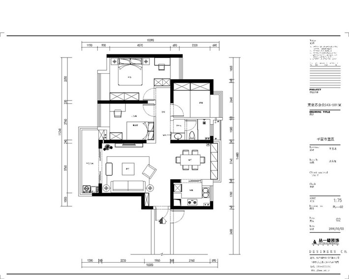
平面布置图
平面布置图

本案例设计师

李郁芬

李郁芬 从业时间:15年

我家装成这样要多少钱

相关案例

RELATED TO THE CASE

免费报价

已有 19056 位业主获取了装修报价

我家也要设计成这样

*您的称呼:
*电话号码:
*请您放心输入,您的一切信息将被严格保密
/*
*/

装修需要多少钱?

免费预约上门量房、报价

免费装修咨询

400-128-7080