咨询电话:400-128-7080
提示:丛一楼装饰向您承诺,您的个人隐私我们会严格保密!
来源:丛一楼装饰 更新时间: 2021-11-24
现代简约
案例风格
二居室
案例户型
110㎡
案例面积
市内楼盘
案例楼盘
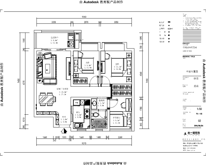
设计师:谢 晓
楼 盘:绿地国际博览城
户 型:三房两厅
面 积:95㎡
风 格:现代简约
造 价:6万元(不含主材)
设计说明:
我想要一回到家就阳光灿烂——这是业主给我的一句话,阳光普照,温暖简约是这个空间的主要元素,吊顶及墙面都没有做过多的造型装饰,还给空间一个最原始的状态,简约舒适、阳光北欧便是这个家所需要呈现的一个最舒服的感觉了。






