咨询电话:400-128-7080
提示:丛一楼装饰向您承诺,您的个人隐私我们会严格保密!
来源:丛一楼装饰 更新时间: 2021-11-23
现代简约
案例风格
二居室
案例户型
110㎡
案例面积
市内楼盘
案例楼盘
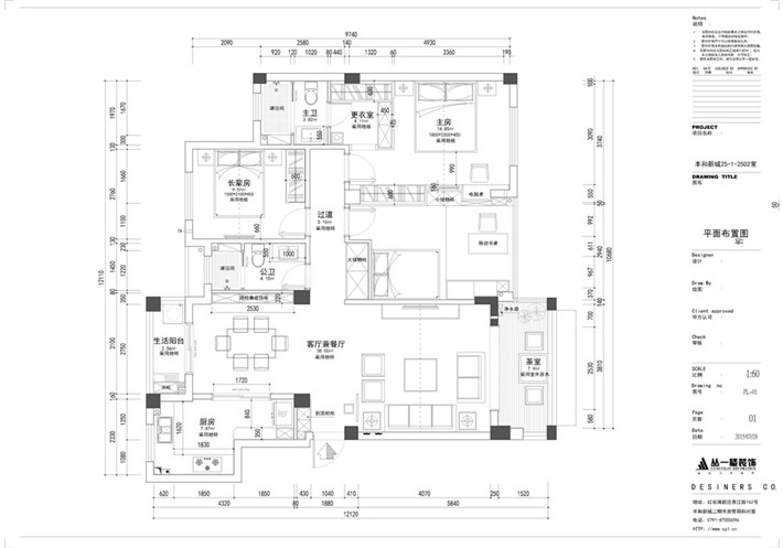
设计师: 张波
楼 盘: 丰和新城
户 型: 三房两厅两卫
面 积: 127平方
造 价: 11万不含主材
风 格: 新中式
设计说明:
神似而形不似。这个是新中式装修风格最大的特征,为了要有中式风格的一些气质,但又不想把形状弄的跟中式风格复杂,省却更多的金钱与精力,新古式风格便会用一些简单的中式元素并把它装饰的有中式风格的意味。 造型多样化。相比起中式风格,新中式装修风格可以很轻松地用各种造型来搭配出所具有的意味。 简化工艺。用新出现的材料并且用简化的工艺让其变得有中式风格的特点。







