咨询电话:400-128-7080
提示:丛一楼装饰向您承诺,您的个人隐私我们会严格保密!
来源:丛一楼装饰 更新时间: 2021-11-22
现代简约
案例风格
二居室
案例户型
110㎡
案例面积
市内楼盘
案例楼盘
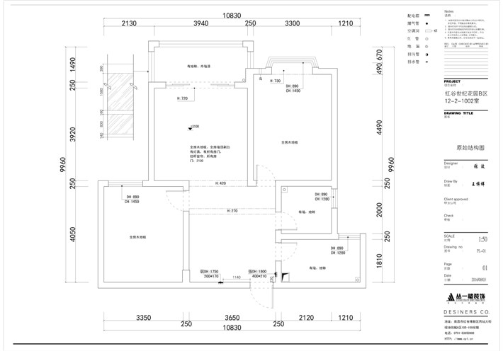
设计师:张波
楼 盘:红谷世纪花园
户 型:两室两厅
面 积:89平
风 格:小美式风格
造 价:15万不含主材
设计说明:
本方案亮点在于巧妙地把原来的两室改为三室。小美式来源于现代美式风,是美式风格的缩小版,甚至混搭各种风格,以体现个性的装修风格。当代个性社会,人人消费追求个性化,不一味模仿他人,凡事要根据个人的爱好,(我喜欢)才是重要原则立意--写意:由感性认知到理性认识,再由理性认识创造出新的感性认知 。由特殊到一般,再由一般升华到更高的特殊品位便融入其中了。家居装饰既用于自我享受,也为了友朋交流,人物和谐,知行合一。







