咨询电话:400-128-7080
提示:丛一楼装饰向您承诺,您的个人隐私我们会严格保密!
来源:丛一楼装饰 更新时间: 2021-11-19
现代简约
案例风格
二居室
案例户型
110㎡
案例面积
市内楼盘
案例楼盘
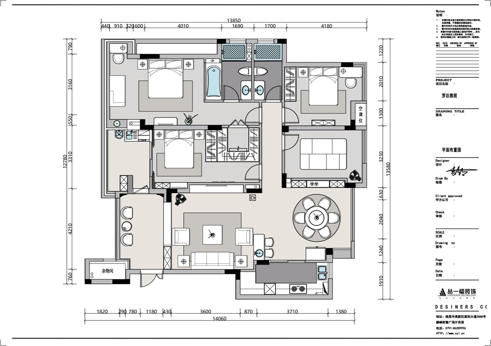
项目地址:绿地新都会15栋
项目面积:165平方米
户型:四室三厅一厨两卫两阳台
风格:高档美式
半包造价:16.8万
主要材料:仿古砖、拼花地板、实木护墙板、绣花墙布、石膏线、金装乳胶漆
【本案设计说明】
本案设计为L总及其他夫人量身定制的美式设计方案。整个方案设计完成后,将空间利用率最大化,整个动线很适合人体工程学实践需求。
玄关端景造型结合了隐形门方式,美观实用。客厅电视墙及餐厅酒柜均采用嵌入式设计来满足美式大空间的需求。餐厅采用圆形餐桌布置,方便中式用餐也象征团圆。厨房门两边空间巧妙放置一个水吧及对开门大冰箱,让整个空间饱满规整,给人一种很舒服的视觉效果。长辈房与生活阳台用移门隔断,方便平时的生活料理及出入。北面2个卧室分别是女儿房及客房。主卧室改造后的空间非常舒适,有步入式衣帽间休闲区及主卫的浴缸和基本的功能。
客厅全景

主卧

主卧角度二

次卧

老人房

门厅

女孩房

平面布置图


