咨询电话:400-128-7080
提示:丛一楼装饰向您承诺,您的个人隐私我们会严格保密!
来源:丛一楼装饰 更新时间: 2021-11-19
现代简约
案例风格
二居室
案例户型
110㎡
案例面积
市内楼盘
案例楼盘
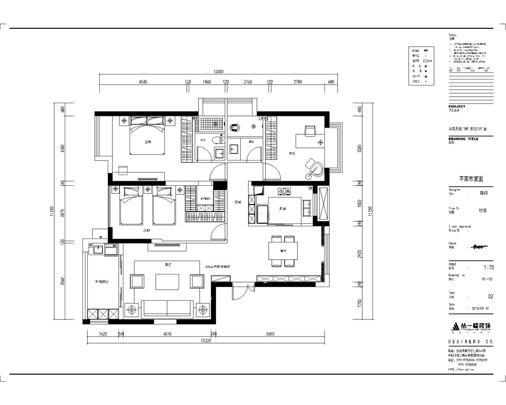
楼盘地址: 联泰天悦13栋1单元
户型: 3室2厅2卫
面积:120平方
风格:现代
装修造价:10.0万
装修材料:
主材:LD瓷砖、科勒卫浴、金牌橱柜、宜华地板、伊诺开关、克拉墙纸等。
辅材:上海熊猫电线、德国弗沃德水管、艺邦板材、德安密防水、可耐福石膏板、立邦油漆等。
本案考虑的是两个小年轻居住房。为此在空间最大化上与柔和色调中进行调配,用白色家具做铺垫,全房木地板铺贴,加上跳色的桌椅,使家主进房感受家的温馨而不失活跃性。

客厅

原始结构图

平面布置图

