咨询电话:400-128-7080
提示:丛一楼装饰向您承诺,您的个人隐私我们会严格保密!
来源:丛一楼装饰 更新时间: 2021-11-18
现代简约
案例风格
二居室
案例户型
110㎡
案例面积
市内楼盘
案例楼盘
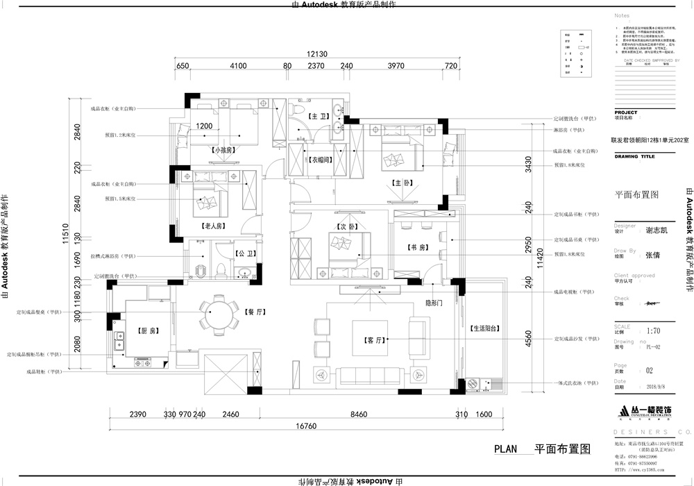
楼盘地址:君领朝阳12栋
本案面积:170平方
本案户型:四房二厅二卫
公司部分造价:15万 主材造价:25万
主要用材:中央空调、实木地板、装饰硬包、隐形门、玫瑰金不锈钢条等
设计师:谢志凯
设计说明:本案的设计通过跟业主沟通后,从功能区域进行了合理划分,与业主意见达成一致,风格定位为现代
中式风格!

客厅

主卧

原始结构图

平面布置图

