咨询电话:400-128-7080
提示:丛一楼装饰向您承诺,您的个人隐私我们会严格保密!
来源:丛一楼装饰 更新时间: 2021-11-15
现代简约
案例风格
二居室
案例户型
110㎡
案例面积
市内楼盘
案例楼盘
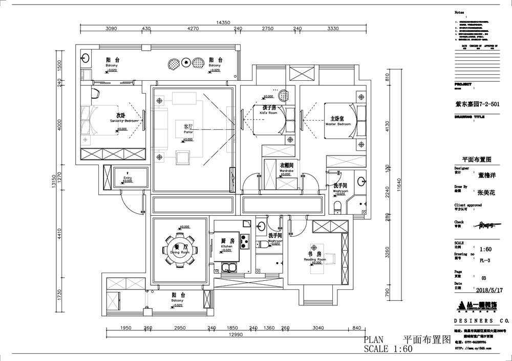
项目名称:紫东嘉园
项目面积:161平方 户型:四房两厅
风格:新中式 半包:14.8万
主要材料:大理石、硬包、不锈钢、木饰面
设 计 说明:在本次的接触中,发现业主是个性格沉稳、喜欢中国传统文化的人。故而以新中式的诠释,这种风格讲究纲常,讲究对称,以阴阳平衡概念调和室内生态。宜设而设,精在体宜,删繁去奢,绘事后素,因景互借,目的是实现一个艺术化的生活环境。中国传统居室非常讲究空间的层次感,这种传统的审美观念在“新中式”装饰风格中,又得到了全新的阐释。

客厅全景

书房

卧室

次卧

原始结构图

平面布置图

