咨询电话:400-128-7080
提示:丛一楼装饰向您承诺,您的个人隐私我们会严格保密!
来源:丛一楼装饰 更新时间: 2021-11-13
现代简约
案例风格
二居室
案例户型
110㎡
案例面积
市内楼盘
案例楼盘
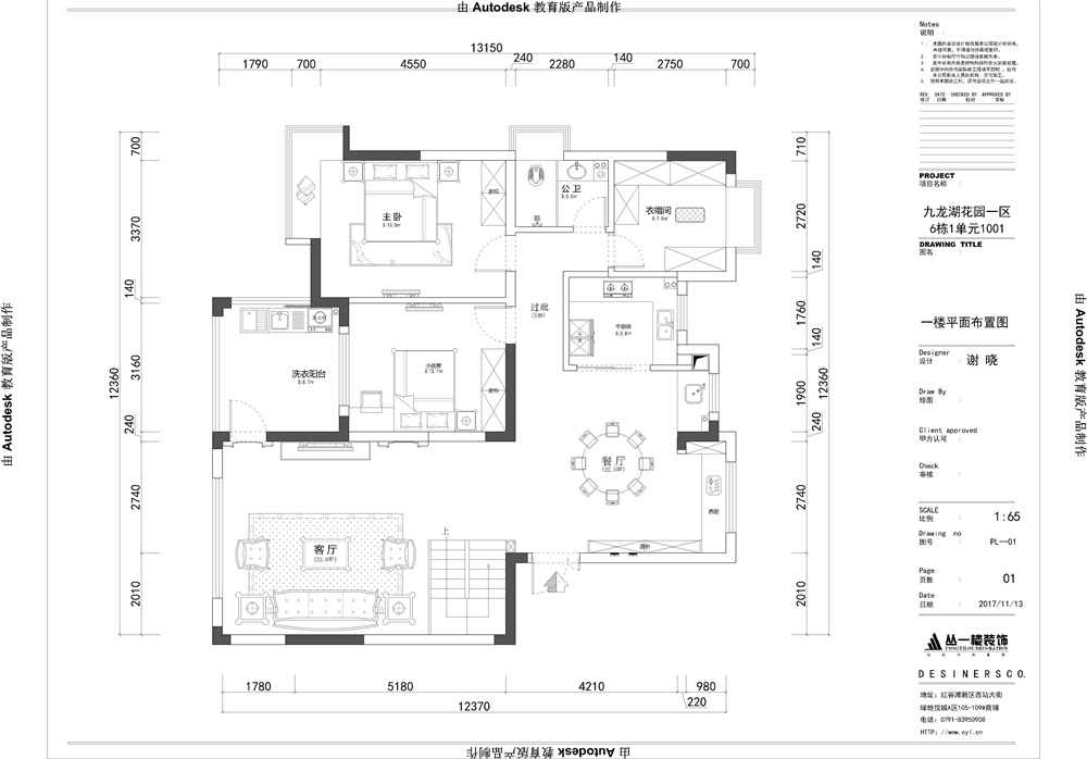
设计师:谢 晓
楼 盘:九龙湖花园
户 型:复式楼
面 积:267㎡
风 格:简中风格
造 价:25万元
设计说明:本案依据业主喜好定义为简中风格,由于居住需要将上下两层现浇起来,增加二楼书房及卧房的空间,满足一家人的居住要求,整体吊顶及背景造型运用简洁木线条的设计,让整个空间最大限度的展示了简中的视觉效果及空间舒适性。

客厅

书房

主卧

长辈房

男孩房

一楼原始结构图

一楼平面布置图

二楼原始结构图

二楼平面布置图

