咨询电话:400-128-7080
提示:丛一楼装饰向您承诺,您的个人隐私我们会严格保密!
来源:丛一楼装饰 更新时间: 2021-11-08
现代简约
案例风格
二居室
案例户型
110㎡
案例面积
市内楼盘
案例楼盘
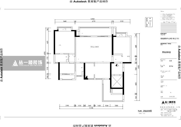
绿地朝阳中心155平三室两厅现代轻奢





地 址:绿地朝阳中心8栋1单元1703室
面 积:155平
户 型:三室两厅
风 格:现代轻奢
造 价:13万(不含主材)
设计说明:现代风格是比较流行的一种风格,追求时尚与潮流,非常注重居室空间的布局与使用功能的完美结合。现代主义也称功能主义,是工业社会的产物,其最早的代表是建于德国魏玛的包豪斯学校。其主题是:要创造一个能使艺术家接受现代生产最省力的环境---机械的环境。这种技术美学的思想是本世纪室内装饰最大的革命。。建筑新创造、实用主义、空间组织、强调传统的突破都是该学派的理念,对现代风格有着深刻的影响。所以,现代风格具有简洁造型、无过多的装饰、推崇科学合理的构造工艺,重视发挥材料的性能的特点。包豪斯学派注重展现建筑结构的形式美,探究材料自身的质地和色彩搭配的效果,实现以功能布局为核心的不对称非传统的构图方法。

