咨询电话:400-128-7080
提示:丛一楼装饰向您承诺,您的个人隐私我们会严格保密!
来源:丛一楼装饰 更新时间: 2021-11-05
现代简约
案例风格
二居室
案例户型
110㎡
案例面积
市内楼盘
案例楼盘
主案设计:韩礼州/杨大华
深化设计:尹志程
楼盘地址:青山湖大境
设计风格:美式风格
基础报价:半包26万
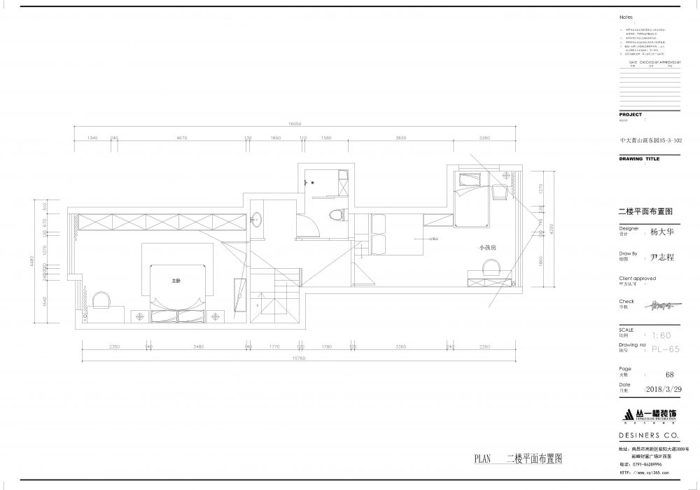
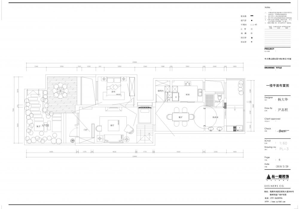
户 型: 复式楼
面 积:280平方米
主要用材:原木板材, 进口复合地板,箭牌卫浴,金牌橱柜,绿森林硅藻泥,LD瓷砖。
户型优缺:餐厅空间较紧凑,区域空间不够明显,楼梯位置让费过多合理空间。
户型南北通透,地下室前后有天井采光通风好。
设计改造亮点:
合理扩建一楼使用空间,把卫生间移通风透气的北面,增加独立洗衣服空间。
二楼整合卫生间区域干湿分开,增加上楼空间的视线。去掉主卧靠南卫生间增加卧室采光/通风。
地下室合理划分功能区域。
客厅
客厅角度2
餐厅
主卧
小孩房
负一楼茶室
负一楼书房
二楼卫生间
负一楼平面布置图
一楼平面布置图
二楼平面布置图

