咨询电话:400-128-7080
提示:丛一楼装饰向您承诺,您的个人隐私我们会严格保密!
来源:丛一楼装饰 更新时间: 2022-09-15
新中式
案例风格
五居室
案例户型
230㎡
案例面积
力高君誉城
案例楼盘
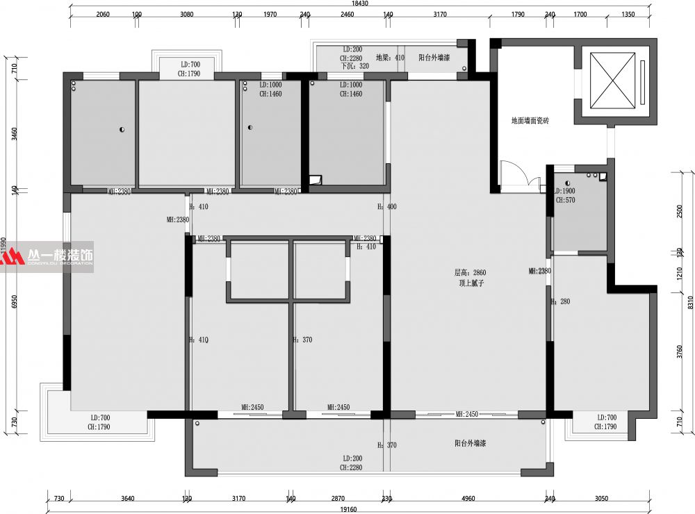
本案是一套面积为230㎡的新中式五房两厅结构,原户型采光和通风都很好,南北通透,动静分离,承重墙体比较少,可塑性很强。美中不足的是,卧室空间较零碎,凸显大宅的感觉还需做些改造。
电视背景墙背靠次卧,通过隐形门+护墙板的设计使得整个电视背景更加整体;
中式风格讲究虚实结合,移步异景,通过室内造景的手法将室内外景色交融,更与电视背景墙的山水画相呼应;
客 厅

餐 厅

主 卧

次 卧

公 卫

原始结构图

温馨提示:鉴于版面篇幅限制,更多设计亮点及全房方案大图全景可以直接咨询 “在线客服” 预约本案设计师,也可点击“我家装成这样要多少钱”10秒获取精准报价。

