咨询电话:400-128-7080
提示:丛一楼装饰向您承诺,您的个人隐私我们会严格保密!
来源:丛一楼装饰 更新时间: 2022-09-15
北欧
案例风格
三居室
案例户型
100㎡
案例面积
力高君誉城
案例楼盘
在这套100平的北欧风格装修,整体空间以现代风的基调、结合丰富的色彩、再加精致时尚的质感与细节,营造出一种别样成熟优雅的北欧风氛围感。

客厅沙发墙是嫩绿色附加白色艺术画,布置一张弧形布艺沙发,地面上垫一块圆形灰色地毯,结合绿植与精致的软装布局,让整个空间显得更加优雅而从容舒适。
餐厅一组西餐桌大理石材台面,还有一排圆形白色球形吊顶,结合精致的餐具、布置果盘与绿植装饰,也显得更加清新,给用餐带来了华丽高级氛围感。

主卧床头墙以艺术涂料做背景调色,布置上一张布艺靠背床铺,还有高级灰床单与窗帘等软装相呼应,一个香槟色懒人沙发点缀,也显色格外 优雅情趣。
厨房以大板砖地面铺贴,搭配爵士白墙面砖,还有果绿色的定制橱柜,在L字形的操作台面空间足够功能使用,给你一个自然温馨的烹饪环境。
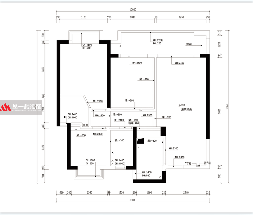
原始结构图---力高君誉城三居室100平方
鉴于版面篇幅限制,更多设计亮点及全房方案大图全景可以直接咨询在线客服预约本案设计师,也可点击“我家装成这样要多少钱”10秒获取精准报价。

