咨询电话:400-128-7080
提示:丛一楼装饰向您承诺,您的个人隐私我们会严格保密!
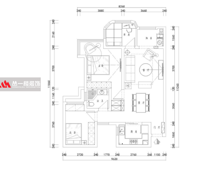
来源:丛一楼装饰 更新时间: 2021-12-07
现代简约
案例风格
三居室
案例户型
110㎡
案例面积
路通沁园
案例楼盘
本案是现代设计风格,大量运用高雅圣洁的白色,结合石头材质寓意着坚韧和顽强。业主为一对夫妻,虽然经过岁月的洗礼,两人的情感也如最初洁白无瑕,“白·石”也寓意他们今后的生活如他们的家一样,相互信任,相守到老。
本案户型方正,但空间面积有限,在加上餐厅过道处过于浪费,交通东西不明朗,入户没有放鞋柜的位置,这是设计需要考虑的重点。经过设计师的合理规划,增设玄关柜,入户功能齐全;小厨房高柜设计,电器、洗碗机嵌入其中。过道处增加三面储藏柜大大提升小空间户型的实用性。

客厅,整体选用简白的沙发、黑色皮质茶几、黑白灰的挂画,将空间呈现延伸的视觉效果,更开阔。客厅、餐厅的开放式格局,视觉效果犹如岛上海面无边际的广阔感,待在家就能尽情慵懒生活。

餐厅,延续了客厅的细腻精巧,开放式空间在雅致花卉,别致的饰品和时尚家具的映衬之下,刻媲美艺术画作,虽静止却难掩灵动,雅奢气度。


主卧,延续了光影的运用,如同笼罩着一层隐约的朦胧,使房间顿生慵懒之感。沉稳冷静的高级灰色调一如主人内敛而高雅的气质,散发出独特的魅力。


