咨询电话:400-128-7080
提示:丛一楼装饰向您承诺,您的个人隐私我们会严格保密!
来源:丛一楼装饰 更新时间: 2020-11-28
现代简约
案例风格
三居室
案例户型
128㎡
案例面积
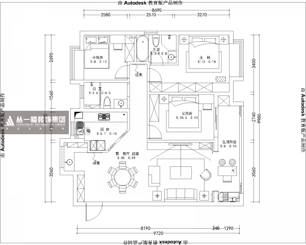
绿地悦公馆
案例楼盘
设计师:孙 溢
楼盘:绿地悦公馆11栋26楼2601
面积: 128平米
户型:三房两厅一厨一卫两阳台
风格:极简 简约
设计说明:房子户型很方正,通风采光都很好,唯一缺陷就是进门就看到灶台,厨房偏小,过道狭长,在设计时我通过往前走一步的设计手法把这套房子的缺陷都迎刃而解。

原始结构图

平面布置图


卧室效果图

