咨询电话:400-128-7080
提示:丛一楼装饰向您承诺,您的个人隐私我们会严格保密!
来源:丛一楼装饰 更新时间: 2020-10-12
案例风格
三居室
案例户型
120㎡
案例面积
绿湖豪城
案例楼盘
设计师:吴翠松
楼盘:绿湖豪城
面积:120平米
户型:三房两厅
风格: 小美轻奢
设计说明:
本方案是典型小美轻奢风格,主体色调是浅色。这套房子是作为改善型住房,所以在格局上是做了微动。原始的阳台一半改造成书房,餐厅圆桌。业主主卧改成男孩房,房子主要以居住为主,不会用来待客和别的所用,所以是突出温馨。

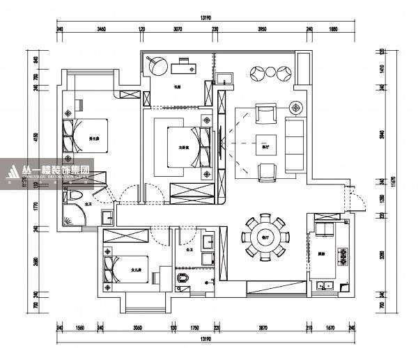
原始结构图

平面布置图


客厅效果图



卧室效果图

